• Byggmann

225 – ORION

KLASSISK HERSKAPELIG

Orion er boligen for deg som liker det tradisjonelle og herskapelige. Med store rom og eksklusive detaljer, tilbyr denne boligen både luksus og praktiske løsninger.

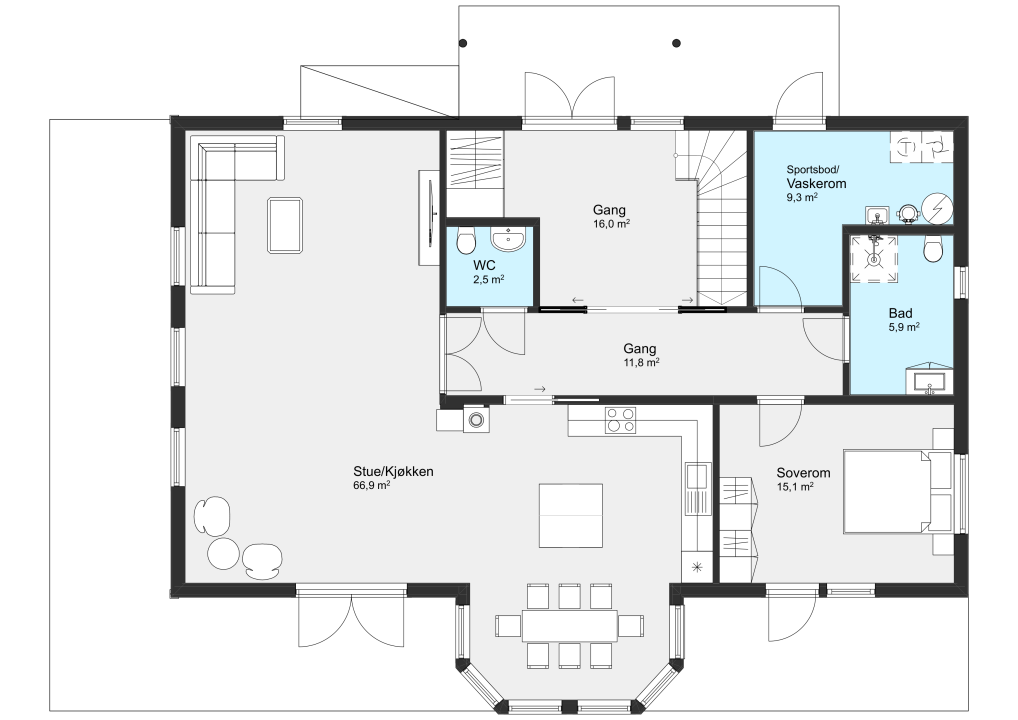
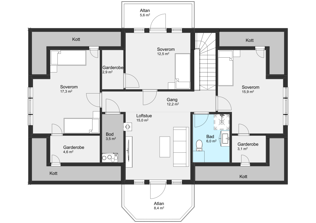
I første etasje får du alle nødvendige funksjoner samlet, inkludert en stor og åpen stue- og kjøkkenløsning. I andre etasje finner du tre store soverom, alle med egne walk-in garderober, to altaner og en loftstue med god plass til både lek og avslapning.

Orion er for deg som ønsker noe ekstra – et hjem med klassisk karakter, stor plass og mulighet til å skape en bolig med lang levetid og personlig preg.

TEKNISK DATA

Bruksareal: 223,7, m²
Bebygd areal: 152,9 m²
Største lengde: 12,7 m
Største bredde: 15,0 m
Antall soverom: 4
Energimerking: Oransje - B

PLANTEGNINGER

1. ETASJE

2. ETASJE

FASADE

ØNSKER DU MER INFORMASJON?

FYLL UT SKJEMAET, SÅ KONTAKTER VI DEG FOR EN HYGGELIG BOLIGPRAT

    ARKITEKT

    ALT KAN TILPASSES FOR Å IMØTEKOMME DERES ØNSKER OG BEHOV

    Fordelene med å bygge et helt nytt hus, er at du kan få det akkurat slik som du vil. Trolig finner du en husmodell i vår katalog som kan passe, men kanskje ønsker du å tilpasse boligen etter egne ønsker og behov.

    Vi vil gjøre vårt ytterste for at du skal bli fornøyd, og hjelper deg hele veien fra idé til ferdig bolig. Vi har fagkunnskap og gir gode råd for at du skal få bygget en bolig som passer deg helt perfekt.»

    Trykk her for å lese mer om arkitekttjenester fra Byggmann.